KM Repair Couplers
Couplers / KM / XL / SDR17
The conical ring coupler KM XL features a unique flexible technology that is designed to accommodate changes in the size (OD) and shape (Ovality) of existing large diameter PE pipes when repairing or connecting to existing mains.
It is not uncommon for large-bore PE pipes that have been in service for some time, to grow 1-2% in diameter due to the constant hoop stress applied by the internal pressure. This increase in diameter is normal, however, it can make repair and connections using traditional slide over electrofusion couplers impossible.
Another common problem is uneven backfilling, this can force a pipe into an oval shape during installation and the pipe has been held in this oval position by the backfill since its initial burial. This ovality can also prevent repair couplers from being slid over the existing pipe.
The diameter range tolerance found in the KM XL overcomes this problem, installation can proceed after a single mechanical peeling, without the need for any retaining devices or re-rounding clamps. The KM XL can accommodate in-ground pipe ovality of up to 6% of OD.
The preparations (removing the oxide layer/cleaning) and the assembly work (conical ring activation/fusion) are described in the general assembly instructions for the FRIALEN conical ring coupler KM XL. The conical ring coupler KM XL must be fused exclusively with the powerful fusion unit FRIAMAT XL fitted with a Y plug with an input voltage of 400 V and output voltage of max 80 V. The conical ring coupler KM XL d 1200 must be fused twice, on both sides of the coupler.
Note: There are separate fusions required for both the inside and outside conical ring.
|
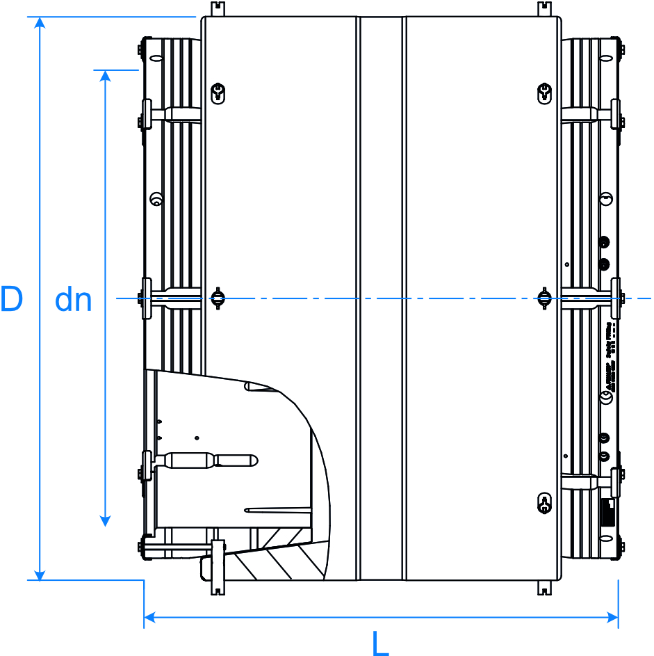
Product Code |
dn |
D |
L |
Availibility in Hong Kong |
|
P3314.11.355 |
355 |
497 |
705 |
12 weeks |
|
P3314.11.400 |
400 |
550 |
730 |
12 weeks |
|
P3314.11.450 |
450 |
602 |
750 |
12 weeks |
|
P3314.11.560 |
560 |
730 |
850 |
12 weeks |
|
P3314.11.630 |
630 |
805 |
940 |
12 weeks |
|
P3314.11.800 |
800 |
1005 |
1065 |
12 weeks |
|
P3314.11.1000 |
1000 |
1245 |
1145 |
12 weeks |
|
P3314.11.1200 |
1200 |
1450 |
1290 |
12 weeks |
